본문
Detail view
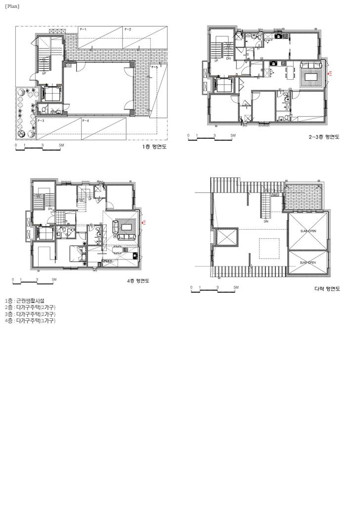
안정적인 임대수익 + 실거주 편의성을 최대한 고려하여 적용되었다.
1층: 통유리를 사용하여 개방감을 확보
2~3층: 임대 세대 (1.5룸/3룸 다가구 구조)
4층: 건축주 세대 (복층형 설계로 프라이버시 강화)
포인트: 외부 마감을 롱브릭 벽돌을 이용하여 안정감 있는 느낌을 주었다.
상가와 주거 진입 동선 완전 분리
4층에 건축주 분이 사용하는 세대로 거실천장을 OPEN시켜 개방감을 주고 안방에 드레스룸과 부부욕실로 공간 활용을 극대화 시켰다.
다락엔 베란다를 만들어 개인공간 활용을 높였다.
추천0 비추천0
댓글목록
등록된 댓글이 없습니다.