로고 로고

스페이스씨앤
로그인 회원가입
  • 포트폴리오
  • 포트폴리오

    스페이스씨앤은 보다 한걸음 더 나아가겠습니다.

    포트폴리오

    보다 발전된 기술로 보다 정교한 제품을 생산합니다.

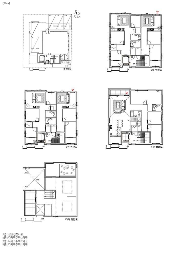
    경기도 시흥시 장현지구

    대지면적 266.90㎡
    연면적 422.51㎡
    규모 지하 0층 / 지상 4층
    용도 근린생활시설 및 다가구주택

    목록으로

    본문

    Detail view

    cbee3874496c995f17404561ee28c3e7_1760280877_857.JPG
    cbee3874496c995f17404561ee28c3e7_1760280877_9787.JPG
    cbee3874496c995f17404561ee28c3e7_1760280878_038.JPG
    cbee3874496c995f17404561ee28c3e7_1760280878_0996.JPG
     

    추천0 비추천0



    댓글목록

    등록된 댓글이 없습니다.

    Total 79건 1 페이지
    • RSS

    검색