로고 로고

스페이스씨앤
로그인 회원가입
  • 포트폴리오
  • 포트폴리오

    스페이스씨앤은 보다 한걸음 더 나아가겠습니다.

    포트폴리오

    보다 발전된 기술로 보다 정교한 제품을 생산합니다.

    경기도 의왕고천 공공주택지구

    대지면적 256.90㎡
    연면적 461.10㎡
    연면적 461.10㎡
    용도 근린생활시설 및 다가구주택

    목록으로

    본문

    Detail view

    cbee3874496c995f17404561ee28c3e7_1760279888_6087.JPG
    cbee3874496c995f17404561ee28c3e7_1760279912_1685.JPG
    cbee3874496c995f17404561ee28c3e7_1760279909_1019.JPG
    cbee3874496c995f17404561ee28c3e7_1760279909_1624.JPG
     


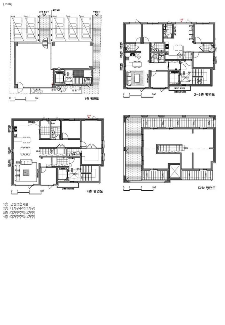
    ※ 안정적인 임대수익 + 실거주 편의성을 최대한 고려하여 적용되었다.

    1층: 전면도로 접근성이 좋고 외부에 화장실을 만들어 공간을 분리하였다.

    2~3층: 임대 세대 (투룸/스리룸 다가구 구조)

    4층: 건축주 세대 (복층형 설계로 프라이버시 강화)

    포인트: 라임스톤을 이용하고 고밀도 목재로 정면과 배면에 포인트를 주었다.

    상가와 주거 진입 동선 완전 분리

    4층에 건축주 분이 주로 사용할 안방에 드레스룸, 부부욕실을 넣어 공간을 효율적으로 확보하였다.

    다락 베란다를 통해 건축주 분의 개인 공간 활용성을 극대화하였다.


    추천0 비추천0



    댓글목록

    등록된 댓글이 없습니다.

    Total 79건 3 페이지
    • RSS

    검색